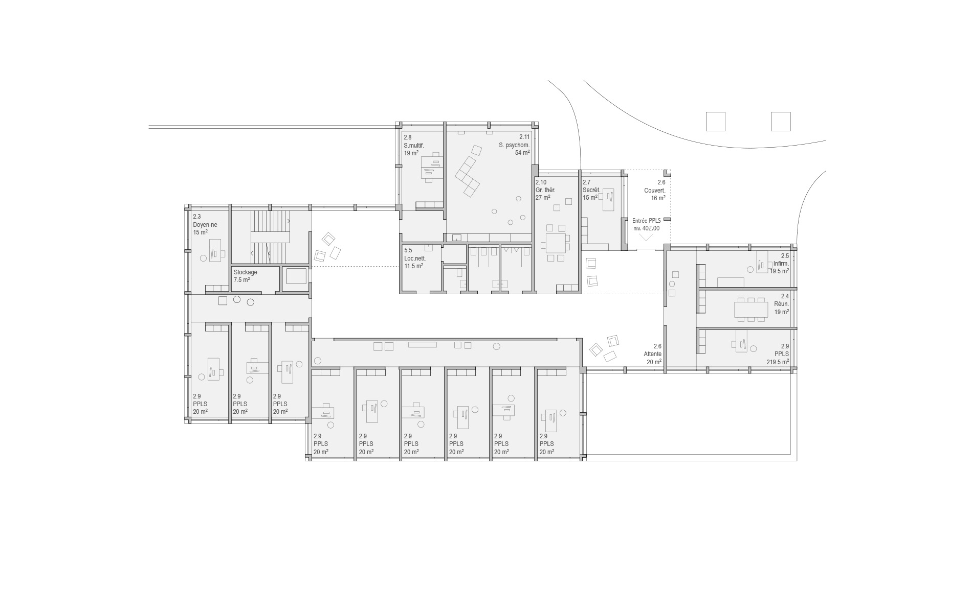
Le projet reprend et poursuit l’implantation pavillonnaire existante en disposant un volume de forme articulée à l’est du site, dans le prolongement du préau principal. Pour respecter l'échelle des constructions existantes et préserver la qualité paysagère du site, sa volumétrie est similaire à celle des bâtiments voisins. La volumétrie, aux lignes découpées, proposée s'implante en quinconce parmi les constructions existantes, en respectant les distances règlementaires entre bâtiments. Le maintien de la salle de sport existante permet de conserver une activité sportive sur le site pendant les travaux d'agrandissement. L'ensemble du site se donne finalement à lire comme un grand parc paysagé s'étirant linéairement d'est en ouest, traversé par des chemins de mobilité douce et ponctué par différents constructions scolaires et récréatives. La distribution des salles de classe reprend celles des bâtiments existants, des grappes de 2 ou 3 salles de classe regroupées en "aile de moulin" autour d’un espace de dégagement commun. La figure en forme de baïonnette qui en résulte permet d’éclairer naturellement ces espaces de dégagement, tout en les ouvrant à la vue dans les différentes directions du site. L’expression modulaire des bâtiments existants se reflète dans la répétition d’une trame constructive rationnelle et simple qui met en valeur l’utilisation du métal, dans une répétition sobre et fine de lignes verticales et horizontales affirmées, de même que par la grande transparence de l’ensemble. La construction des étages recourt massivement à la préfabrication pour réduire les temps de montage et d’assemblage sur le chantier, tout en assurant une haute qualité de fabrication. La structure des parois et des planchers est apparente et fait intégralement partie du concept de mise en œuvre constructif.





