Ceol, Renens
Concours : 2012, 4ème prix
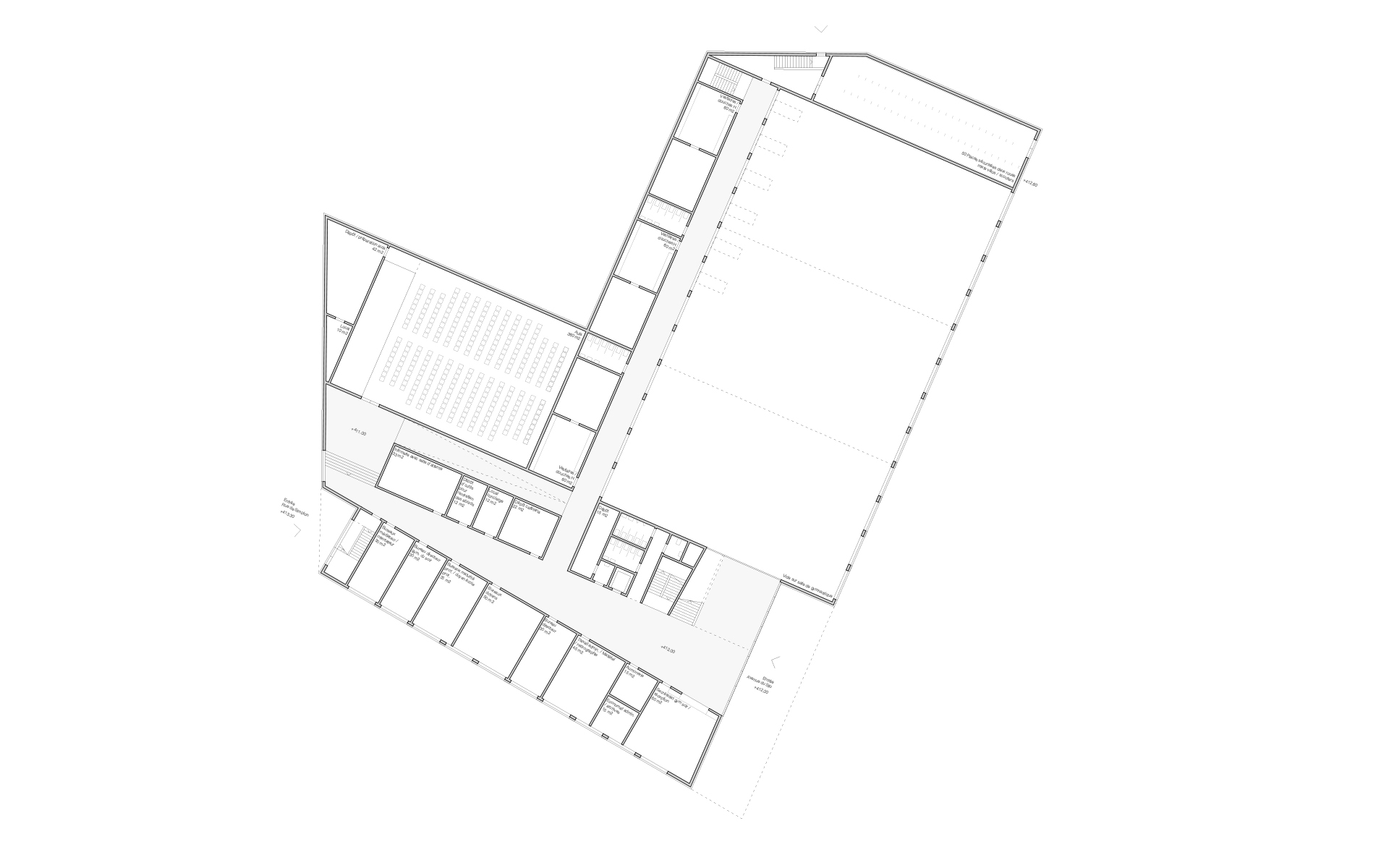
Le projet s’implante dans l’angle est de la parcelle sous la forme d’une figure en forme d’équerre, en respectant les alignements sur rue définis par le plan directeur du quartier. La volumétrie générale reprend les altitudes des volumes environnants. L’angle du volume est rehaussé pour rendre accessible les terrasses situées en toiture. La cour située à l’arrière constitue une partie du préau scolaire, l’autre partie étant située sur les toitures terrasses du bâtiment. On y trouve l’un des accès à l’école, des espaces de récréation et des îlots de parcs à vélos. Les différentes salles du programme se distribuent de part et d’autre d’un couloir central, ponctué ici et là par des espaces de dégagement, de service ou par des cages d’escalier. Ces couloirs sont de dimensions variables, leur largeur diminuant dans les extrémités où le nombre de classes à distribuer diminue.











