Collège de l‘Arnon [br]Fiez

Collège de l‘Arnon [br]Fiez

FLZ_4_C-1920x1200px-300dpi.jpg
FLZ_21_C-1920x1200px-300dpi.jpg
FLZ_20_C-1920x1200px-300dpi.jpg
FLZ_5+6_C-1920x1200px-300dpi.jpg
FLZ_19_C-1920x1200px-300dpi.jpg
FLZ_9_C-1920x1200px-300dpi.jpg
FLZ_8_C-1920x1200px-300dpi.jpg
et1350.jpeg
rez350.jpeg
c1350.jpeg
el350.jpeg
Sortir du plein écranPasser en mode plein écran
previous arrow
next arrow

Collège de l‘Arnon, Fiez

Concours : 2004
Réalisation : 2006-2007

FLZSIT5000-1920x1200px-300dpi

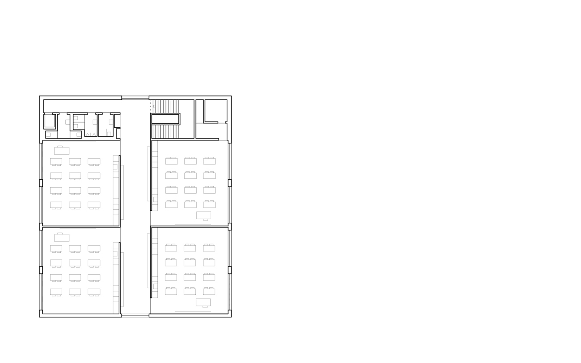
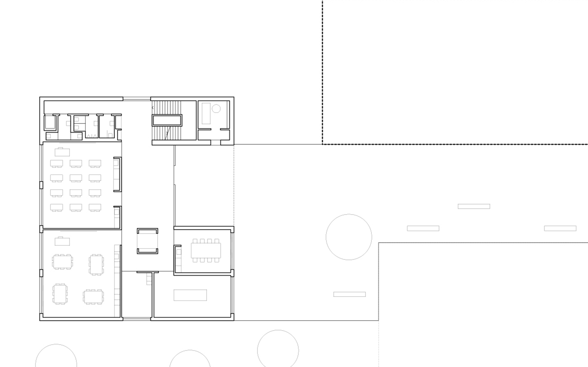
Le programme du concours d’architecture prévoyait la réalisation d’une salle de sport et d’une école de 6 salles de classe avec ses locaux annexes (bibliothèque, salle des maîtres, infirmerie). Seul le bâtiment de l’école à été réalisé à ce jour. Implanté dans la partie la plus plate du terrain, il délimite à l’ouest le préau de l’école, trait d’union avec la route traversant le village.  La salle de sport adossée à la pente du terrain délimitait et accompagnait le préau au nord, en profitant de la déclivité du terrain pour enterrer une partie de son programme et réduire sa volumétrie dans le site.
La réalisation de cette école en bois se veut simple et modeste, à la manière des granges et des constructions agricoles environnantes. Les couvres-joints fixés entre les lames en bois du bardage de façade créent un jeu d’ombre et de lumière qui donne une texture particulière et une épaisseur à la façade, se transformant en claires-voie devant les baies vitrées des salles de classe.

Concours: 2004
Construction: 2006-2007
Maître de l‘Ouvrage:
Commune de Fiez
Direction des travaux:
R. Delaporte, Ingénieur civil: Perret Gentil SA, Ingénieur électricien: Perrin & Spaeth SA, Ingénieur CVS: AZ Ingénieurs SA

esposito & javet architectes
Rue des Terreaux 10
1003 Lausanne
Google Map

t +41 21 661 27 05
info@esposito-javet.ch