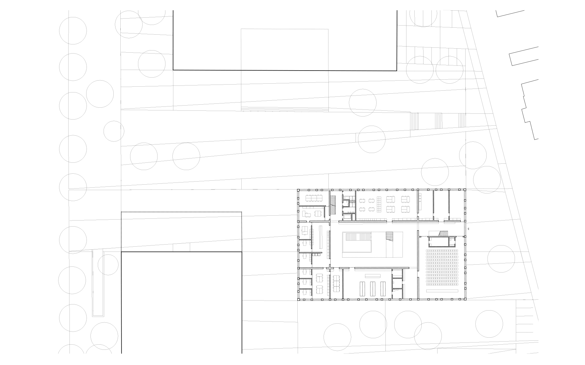
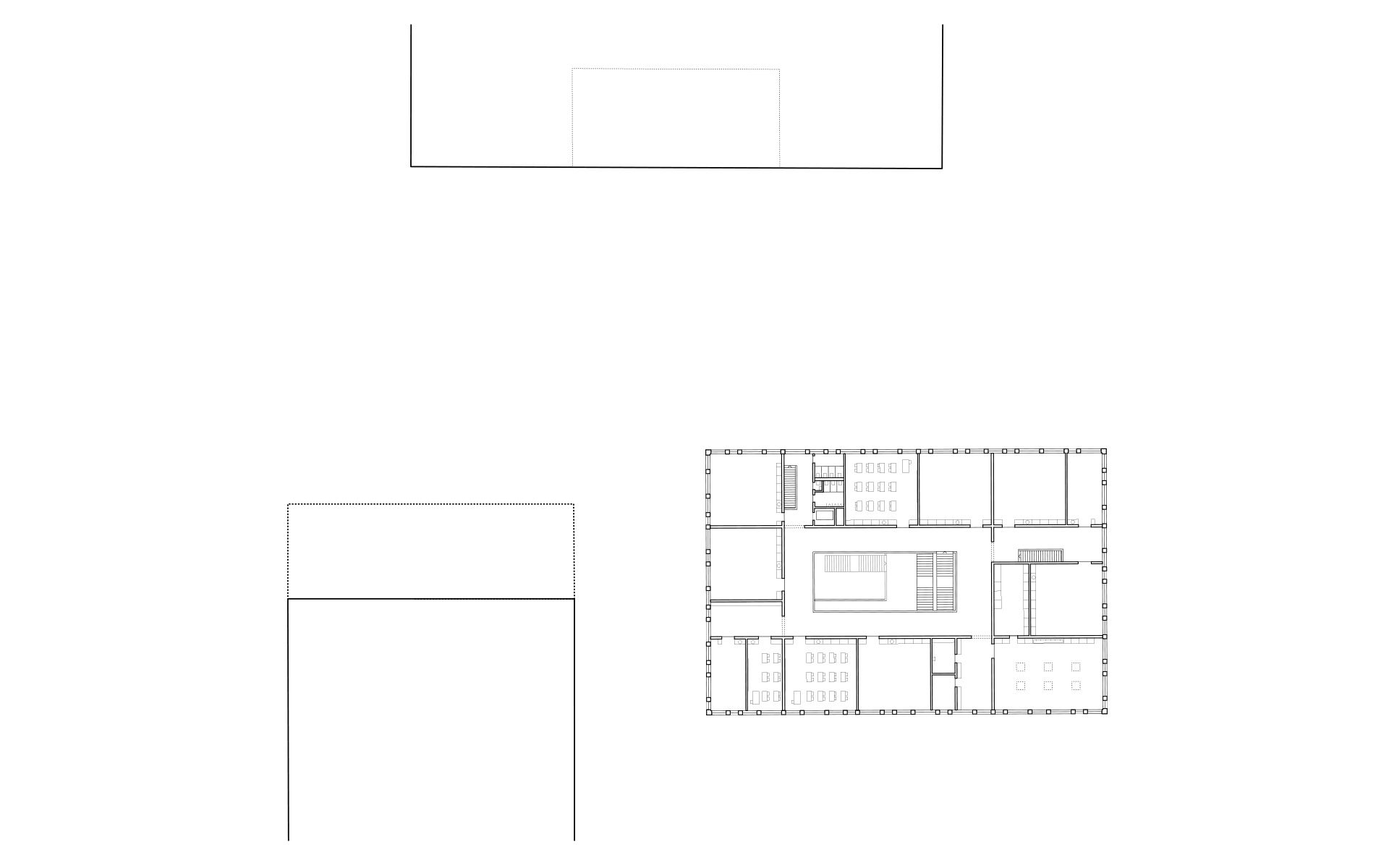
Les deux bâtiments modulaires en acier des années ’70 implantées dans un grand parc ont été complétés par l’ajout d’un troisième volume qui regroupe l’ensemble des constructions autour d’un vaste préau central requalifié. Les bâtiments et leur prolongements extérieurs « se traversent » naturellement de part en part, mettant en relation les diverses parties du site : des terrains de sport et une piscine au sud, des quartiers de logements tout autour. Le nouveau bâtiment s’implante en bordure de la rue du Léman, sur une ligne de rupture de pente. La liaison intérieure entre la rue du Léman et le préau de l’école en contrebas au travers d’un atrium de lumière permet un accès différencié à chaque niveau. Sa conception typologique réinterprète celle de l’école existante, des couloirs et des salles de classe disposées en couronne autour d’un espace central borgne. Il se distingue de son modèle par l’organisation en hélice de ses couloirs et de ses salles de classe autour d’un vaste atrium central baigné de lumière naturelle, permettant de belles vues sur l’extérieur depuis le cœur du bâtiment. La superposition dans un volume unitaire d’un programme complexe et diversifié (des salles de sport, une salle polyvalente, un réfectoire scolaire ou des salles de classe) a été rendue possible par le recours à une structure porteuse en béton armé qui s’exprime en façade par une grille de poutres Vierendeel et à l’intérieur par des murs-voiles qui ont permis le franchissement de grandes portées.
Concours: 2005
Construction: 2007-2009
Maître de l‘Ouvrage:
Ville de Renens
Direction des travaux:
Regtec SA, Ingénieur civil: Ingeni SA & Lurati Muttoni Partner, Physique du bâtiment: Sorane SA, Ingénieur électricien: Perrottet Ingénieurs Conseil en Electricité SA,
Ingénieur CV: Pierre Chuard Ingénieurs Conseils SA, Ingénieur sanitaire: Saniplans SA,
Architecte-paysagiste: Paysagestion SA,
Eclairage: Aebischer & Bovigny


















