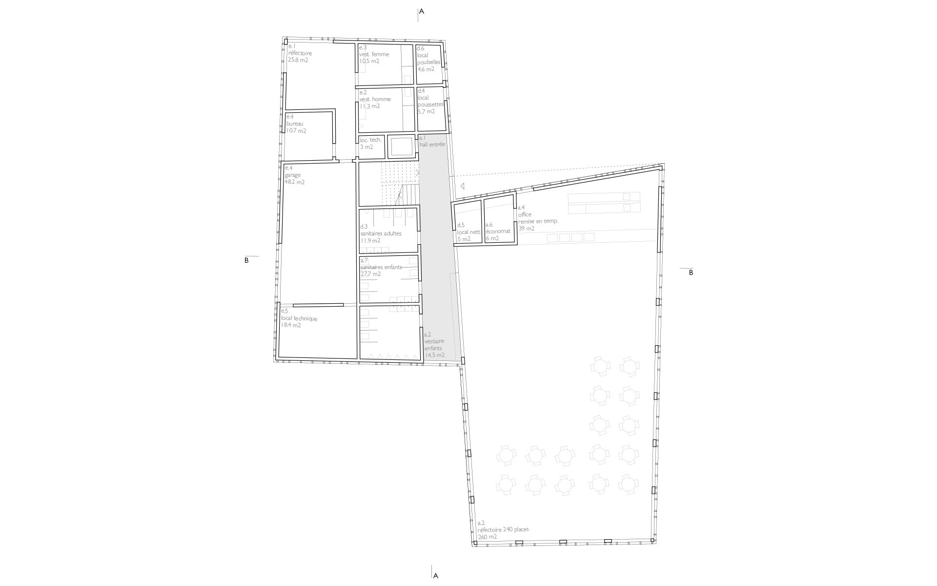
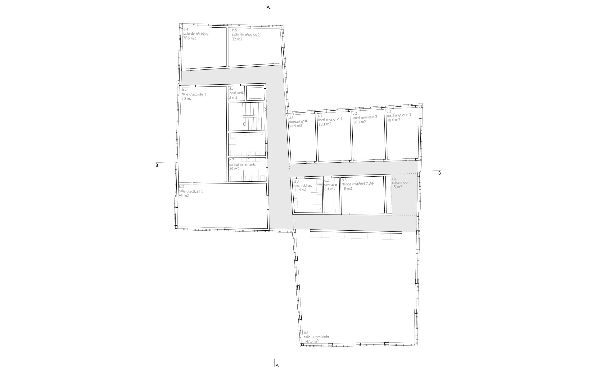
Le nouveau volume abritant le programme d'équipements publics se situe à l'emplacement de la Villa Lamartine, qui est démolie. L'implantation dans cette partie du périmètre permet de fermer le grand préau central à l'ouest, en inscrivant la nouvelle construction dans la composition en figure d'anneau de l'ensemble.
Le projet est composé de deux volumes accolés et légèrement décalés l'un par rapport à l'autre. Cette figure en forme de baïonnette dessine le nouvel accès au site depuis la rue Faller par un chemin aux lignes brisées qui reprend le vocabulaire géométrique des chemins et places existants situés au pied des constructions scolaires. Chaque volume contient des éléments distincts qui s'orientent selon les besoins du programme. Par sa forme géométrique, le restaurant scolaire se trouve complètement immergé dans le parc. Le concept paysager s'inscrit dans la continuité du vocabulaire paysager de Paul Walthenspül qu'il met en valeur et qui qualifie l'ensemble du site: lignes géométriques brisées, murets en pierre délimitant les parties plantées des chemins, essences végétales locales (chênes, érables, charmes).









