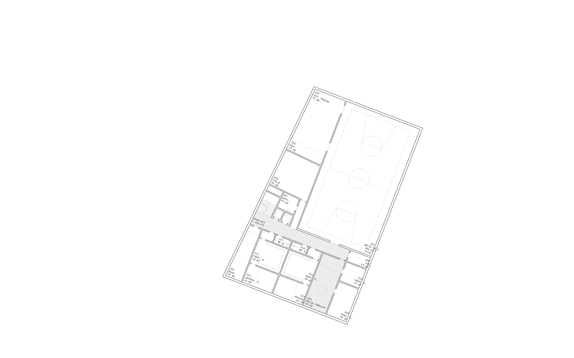
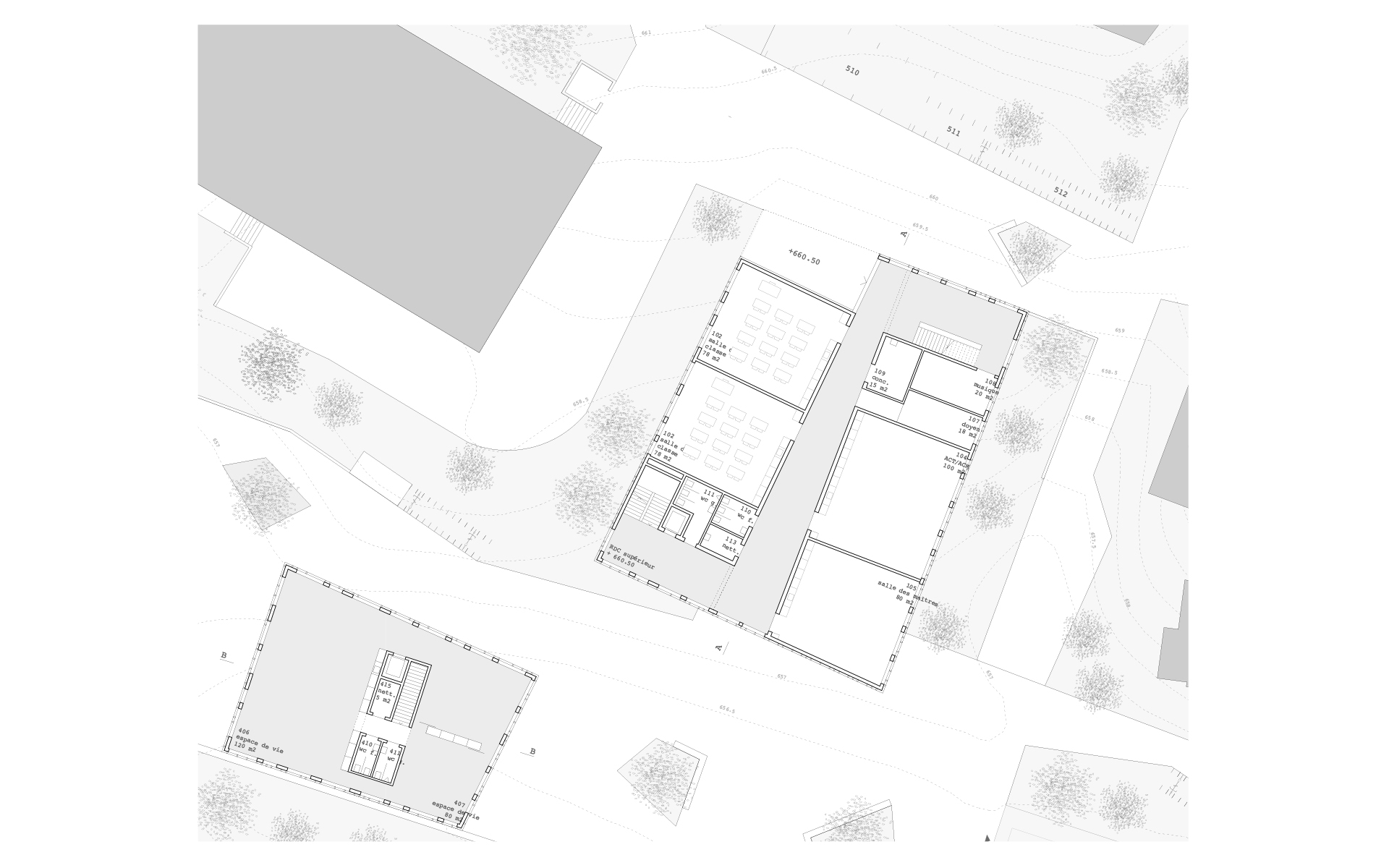
Le collège vient s'implanter en bordure sud-est du nouveau quartier d'habitations des Fiches, le long de la route de Berne. Le préau de l’école devient une nouvelle esplanade de convergence pour le quartier. Elle accueille le centre de vie enfantine existant, le nouvel APEMS et le terrain tous temps. L'école vient s'implanter en bordure de cette esplanade, sur la partie en amont de la parcelle. Elle profite de la déclivité du terrain pour offrir des accès à des niveaux différents: au nord l'entrée "administrative", au sud, l'entrée principale reliée aux préaux et aux terrains de jeux, hors circulation automobile. La liaison transversale souhaitée pour la mobilité douce d'est en ouest passe par l'esplanade et le préau scolaire. L'école se développe sur trois niveaux, la salle de sport se situe en partie basse, semi-enterrée. L'APEMS, plus petit en surface, cherche à se mettre en rapport avec la volumétrie du bâtiment scolaire historique de Petit Vennes, point de référence dans cette partie de l’esplanade.












