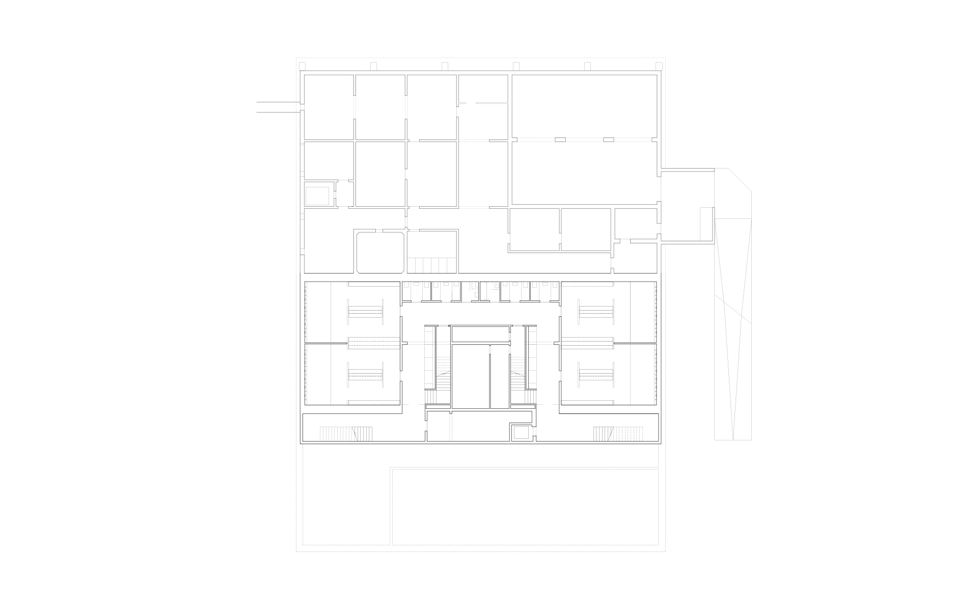
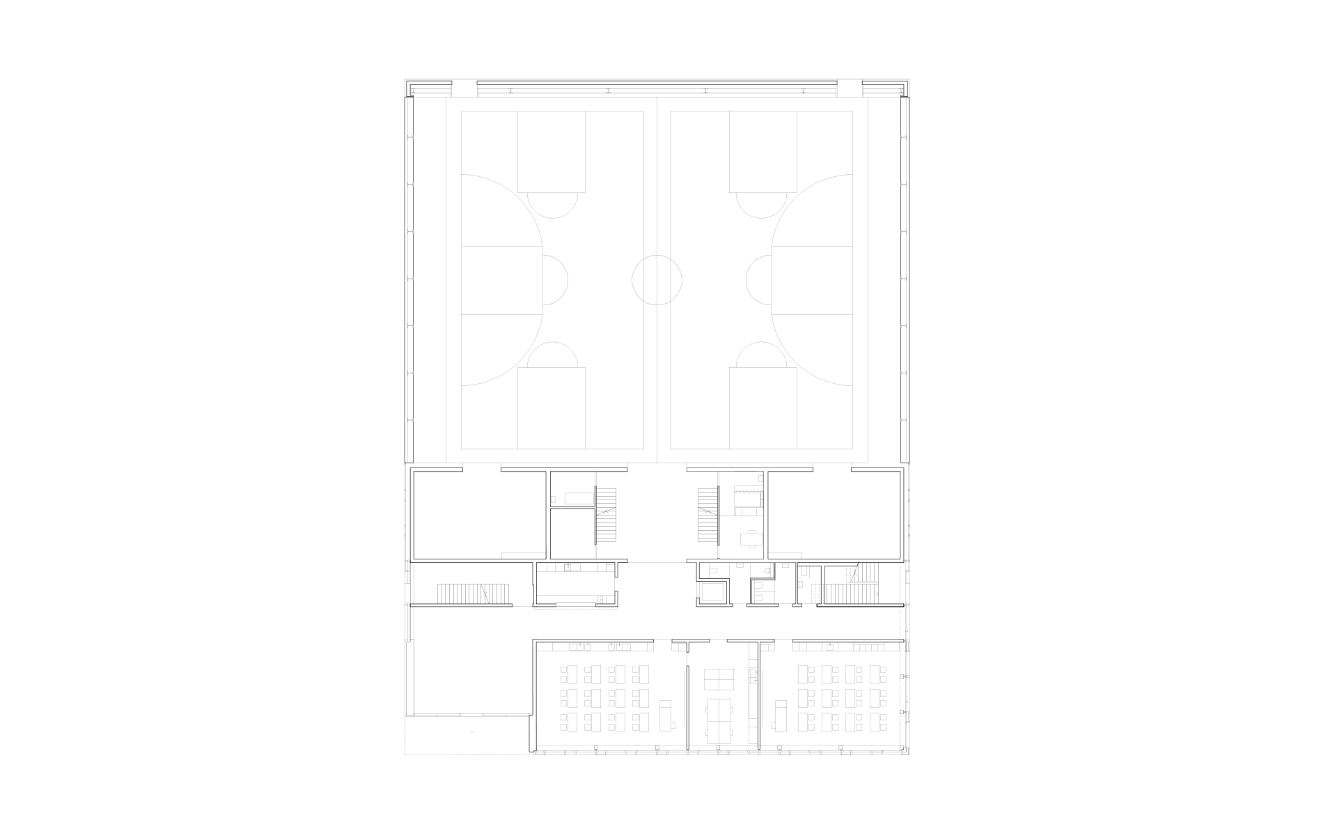
La transformation et l’extension de la double salle de sport existante, une halle métallique modulaire des années ’70 construite avec une grande économie de moyens, constitue la dernière étape de l’agrandissement complet du site scolaire du Léman. La faible constitution de l’enveloppe thermique, de la charpente métallique ou la qualité des aménagements intérieurs ne répondaient plus aux exigences actuelles et ont nécessité une réfection complète pour répondre aux normes actuelles (sismiques, performances thermiques).
Le volume initial a été complété par l’ajout de 8 nouvelles salles de classe de 64 m2 chacune, 2 salles polyvalentes de 80 m2, une salle de dégagement de 40 m2 et une série de locaux sanitaires et de locaux de service (dépôt, local nettoyage), d’une cuisine pour les sociétés locales lors de manifestations diverses. Les façades métalliques reprennent le langage modulaire des 2 autres bâtiments présents sur le site. Des volets de ventilation et différents ouvrants assurent la ventilation naturelle des différents espaces.















