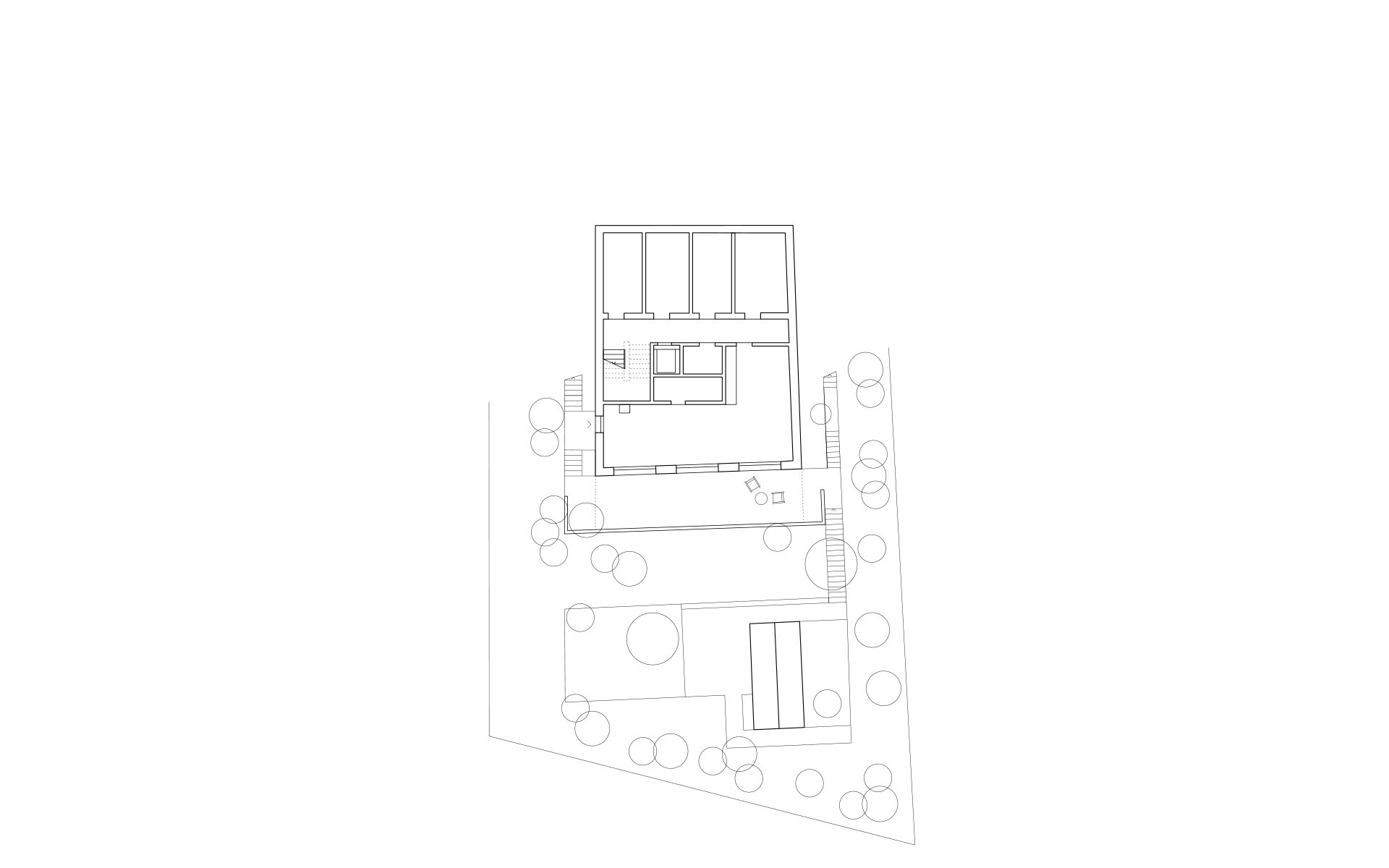
Inséré dans un tissu urbain hétéroclite, le nouveau bâtiment en béton brut apparent se présente comme un monolithe minéral surgissant de la végétation, dans lequel sont creusées des terrasses, des loggias et des couverts. La parcelle en forte déclivité s’ouvre en direction du sud et offre de beaux dégagements vers le lac et les montagnes. Une cage d’escalier éclairée en façade distribue trois appartements de surfaces similaires: 2 appartements sur un niveau et 1 appartement d’attique en duplex. Les appartements s’organisent de manière fluide en réduisant les espaces de circulation au profit des espaces de vie. La cuisine et le séjour s’articulent autour d’une grande loggia ou d’une terrasse ouverte au sud et à la vue. Chaque appartement bénéficie de trois ou quatre orientations. Les murs extérieurs en béton sont porteurs. Les fenêtres sont conçues comme de grandes ouvertures sur le paysage et le contexte bâti environnant. Elles se décomposent en deux parties: un volet plein pour la ventilation et une partie vitrée pour la vue et la lumière. Le jardin paysagé est constitué de terrasses qui s’étagent dans la pente, parfois minérales, parfois végétales, créant des ambiances spécifiques qui en agrémentent l’usage.
Projekt: 2010-2013
Construction: 2013-2015
Maître de l‘Ouvrage:
E+J Immobilier, Ingénieur civil: Giacomini & Jolliet SA, Ingénieur électricien: Louis Richard SA, Ingénieur CV: Pierre Chuard Ingénieurs Conseils SA, Ingénieur sanitaire: Mayor & Cie SA,
Architecte-paysagiste: L‘Atelier de Paysage Jean-Yves Le Baron sàrl, Eclairage: Aebischer & Bovigny












